Charmig 3-rumslägenhet till salu i Lagos marina med spektakulär utsikt

Charmig 3-rumslägenhet till salu i Lagos marina med spektakulär utsikt. Denna fullt möblerade lägenhet ligger på andra våningen med hiss. Den erbjuder en garageplats i byggnadens garage. Kontakta oss för att köpa lägenhet i Västra Algarve. Vi har ett stort utbud av hus, tomter och lägenheter i Västra Algarve.

Interiör

Antal rum:
3 rum varav 2 sovrum
Boarea:
146 m2
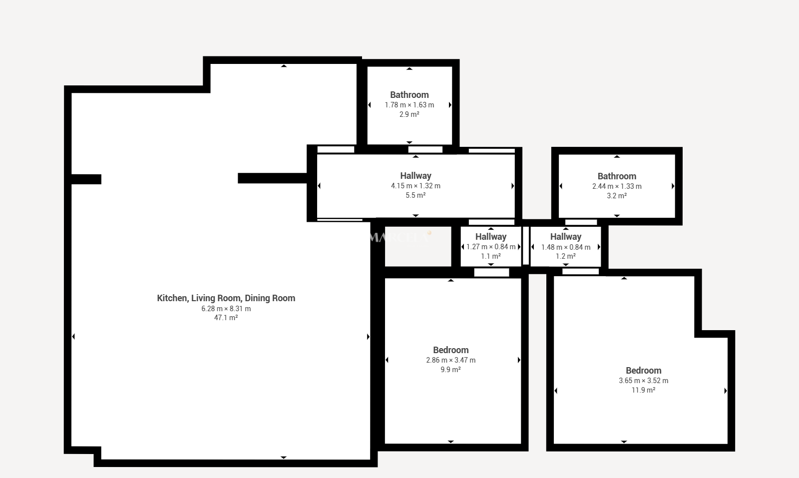
Rumsbeskrivning
Lägenheten består av 2 sovrum, 2 badrum, ett fullt utrustat kök med matplats, ett stort ljust vardagsrum med direkt tillgång till den stora balkongen som sträcker sig runt huset med utsikt över marinan och Lagos stad.
Kök
Fullt utrustat kök.
Badrum
Två badrum.

Lägenhet

Upplåtelseform
Ägarlägenhet
Våningsplan
2 av 4, hiss finns

Byggnad

Byggnadstyp
4-planshus med garage och källarplan
Uppvärmning
Centralvärme.
Ventilation
A/C.
Energideklaration
Energiklass: Energiklass C
Byggnadssätt
Fönster: 2-glas isolerglasfönster.
Övrigt
Det finns möjlighet att köpa ett pass för att få tillgång till Marina Club-poolen. Denna lägenhet ligger bara några f¨å minuter från den vackra stranden Meia Praia och Lagos centrum.

Närområde

Allmänt
Lagos (bokstavligen sjöar, från det latinska lacobriga ) är en kommun vid mynningen av Bensafrimfloden och längs Atlanten, i Barlaventoregionen i Algarve.Den största staden Lagos (som inkluderar församlingarna Santa Maria och Sao Sebastiao ) har en befolkning på ca 22 000 invånare, medan kommunen har en bofast befolkning på 31 048 invånare. Normalt ökar dessa siffror under sommarmånaderna, med tillströmningen av besökande turister och säsongsbetonade invånare.Lagos är en av de mest besökta städerna i Algarve och Portugal, på grund av dess utbud av vänliga stränder, barer, restauranger och hotell, känd för sitt livliga sommarnattliv. Lagos är också ett historiskt centrum för det portugisiska upptäcktsresandet, bl a Henrik Sjöfararen, historiska varvet och en gång i tiden centrum för den europeiska slavhandeln.
Kommunikation
Faro flygplats: 90 km.
Närservice
All service med restauranger, barer, kaféer, banker, butiker, snabbköp, sjukhus m.m. finns i Lagos.
Parkering
Garageplats.

Gillar du detta objektet? Kontakta oss för mer information.

Fält markerade med stjärna * är obligatoriska.

Fastighetsbyrån City & Country Homes hanterar dina personuppgifter enligt Allmänna dataskyddsförordningen och GDPR (General Data Protection Regulation). Information

040-692 87 28

Öppna större karta

Lägenhet

Lagos
Västra Algarve

Pris:
650 000 EUR
Antal rum:
3
Boarea:
146 m2
Antal sovrum:
2
Ref.nr
CCPMA2136

Dela

Till toppen